Seismic Design
2015 National Building Code
Construction for Seismic Forces
Southwest New Brunswick is just one of two areas east of the Rocky Mountains that requires construction for seismic forces, and given that it’s new – a result of the province adopting the 2015 National Building Code – it means there is a learning curve for some designers, contractors and builders.
To use, first enter an address or Property Identification Number.
Use the “layers” link at left to select one of the two available overlays.
Sa 2.4 – select this if you intend on building ABOVE ground insulated concrete forms. If your property is in the YELLOW area, the ICF reinforcing must meet either industry-established reinforcing, or, if such isn’t applicable for your chosen brand, the reinforcing must be designed by a structural engineer.
Sa 2.7 – select this for stick-frame builds. If your property is in the RED area, then earthquake bracing (download our earthquake-pamphlet) is required.
Click quake-numbers for basic numbers to assist in design.
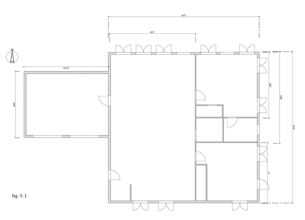
Fig. S-1 is a simplified design guide on how to submit a plan that will show our building inspectors what’s required to meet code for a wood-frame residential building.
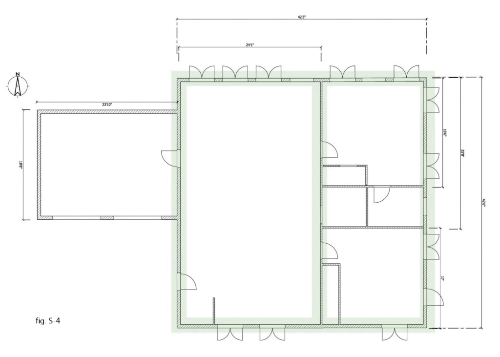
First off, here’s a plan that shows a 42′ x 42′ one-storey, two-bedroom, two-bathroom, open concept bungalow with an attached garage. It’s intended to be a typical floor plan. Presuming this were intended to be built to typical standards – 2×6 walls at 16″ centres, 4” frost wall, slab-on-grade floor, and engineered trusses – it would meet Code everywhere in New Brunswick… except for ours.
We’ll show why it doesn’t meet Code, and how a designer can alter the plan to make it compliant.
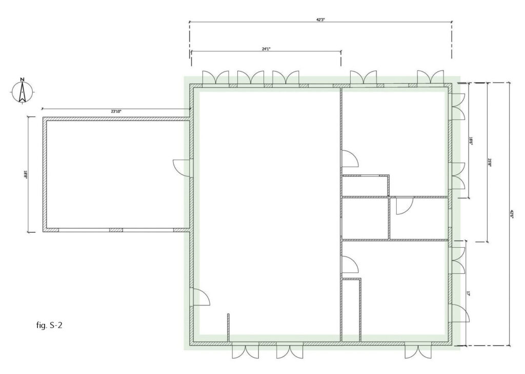
First off, the fundamental concept of seismic bracing is that a building has to be divided into “Braced wall bands.” This indicates sections of wall that will require some elements to be constructed a bit more robustly, and almost always includes all the exterior walls of a structure. For sake of visualization, we’ve highlighted these areas in green. At this point, we’re not going to concern ourselves with the garage – just the main house.
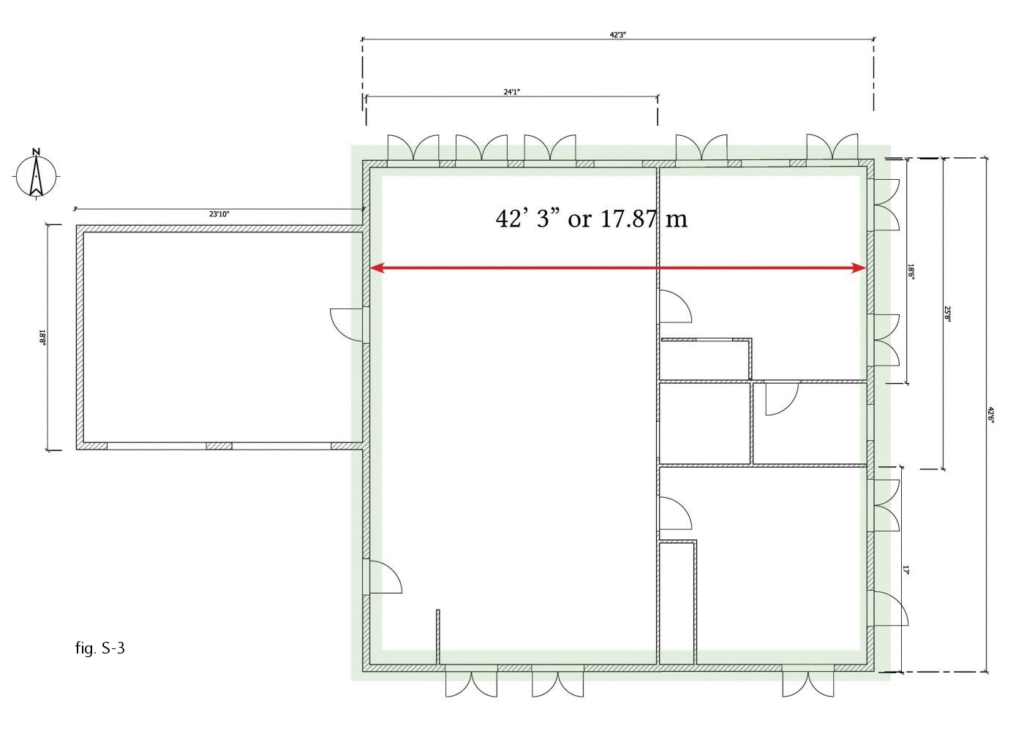
Another key consideration is that in above-ground construction, these braced wall bands cannot be further than 10.6 metres (34’7″) apart from each other.
As seen in Fig S-3, the distance between the two north/south exterior walls exceeds this spacing, meaning that some of the interior walls will have to be designated as braced wall bands.
Fortunately, in this example, that’s fairly easy: the plan already intended a 42′-long wall on the interior. Consequently, this wall can also be designated as a braced wall band.
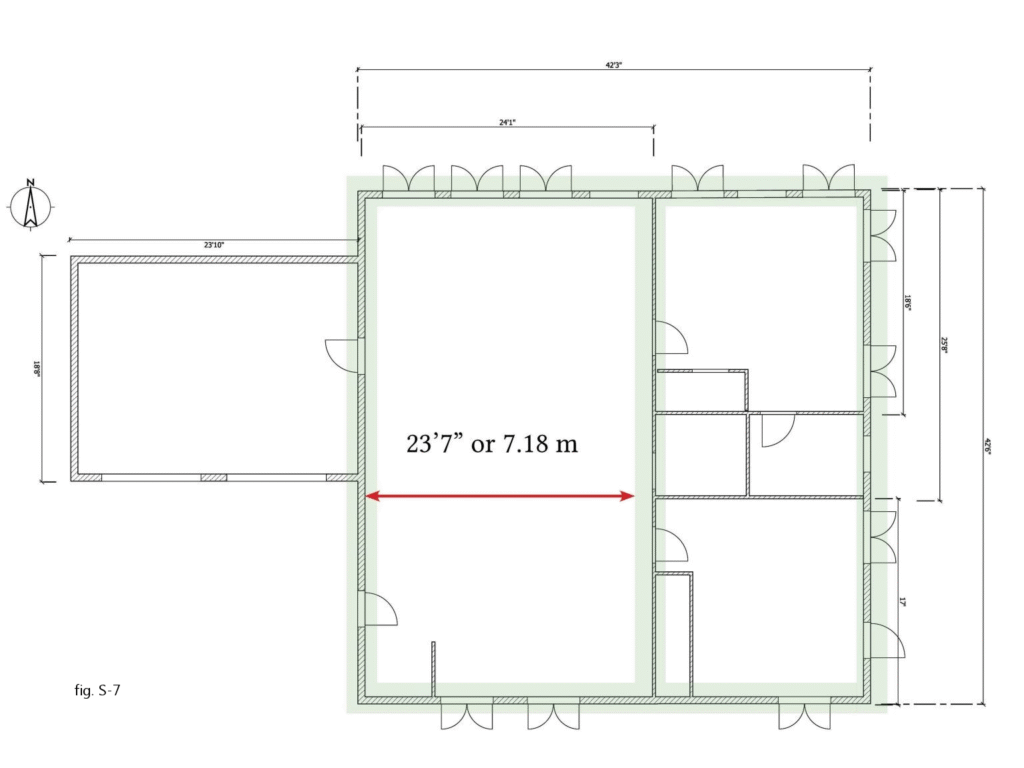
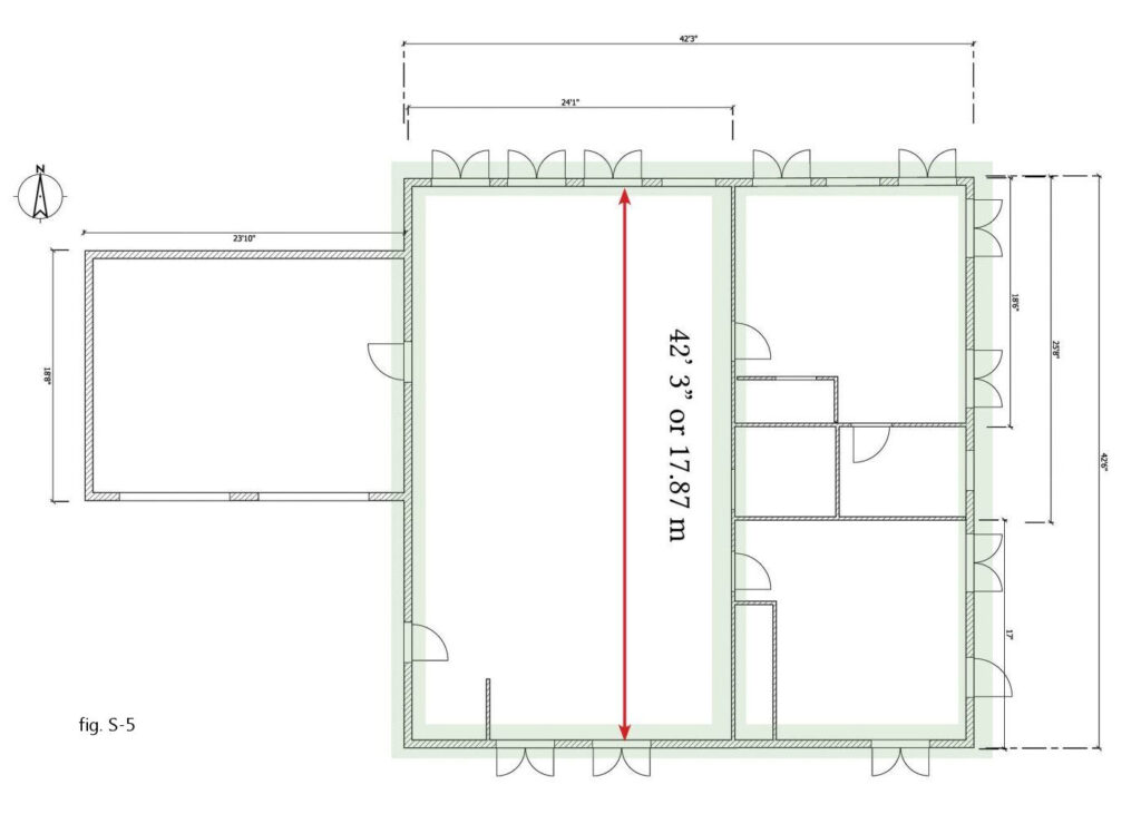
However, it’s important to recognize the requirement for braced wall bands applies in all directions. In this case, the distance between the north and south exterior walls exceeds the 10.6 (34′ 7″) maximum. This means that another interior braced wall band is required.
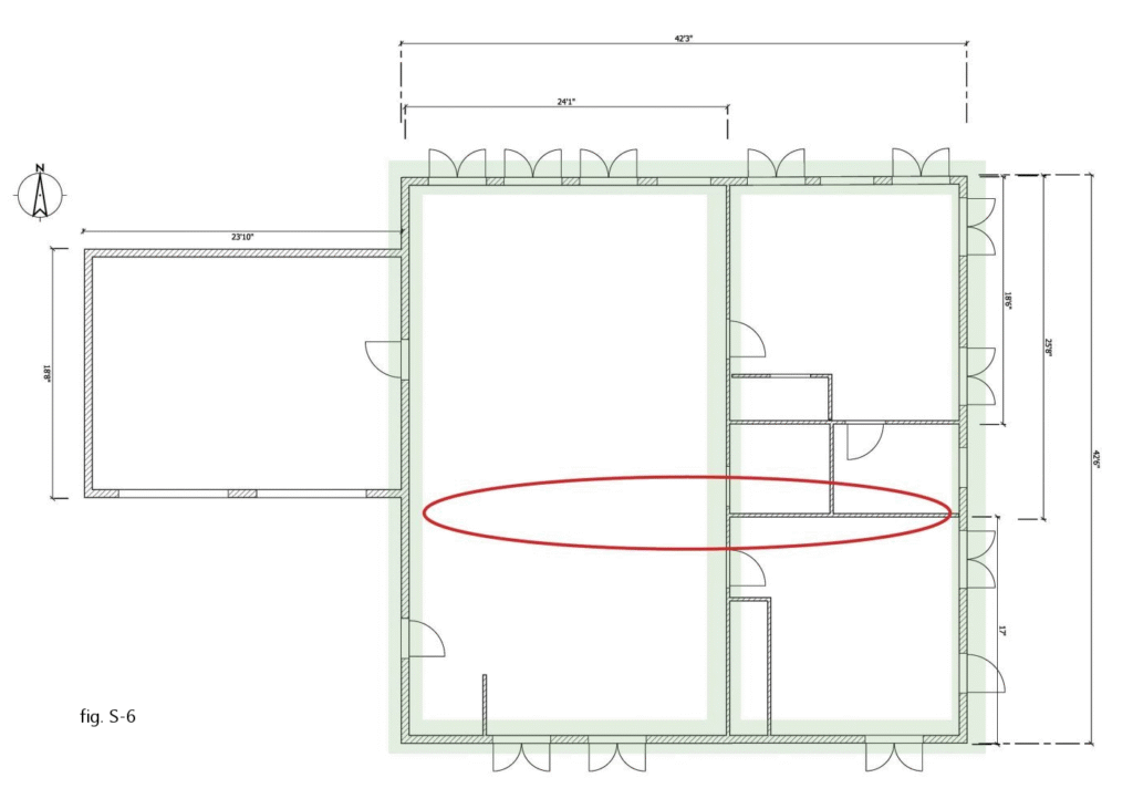
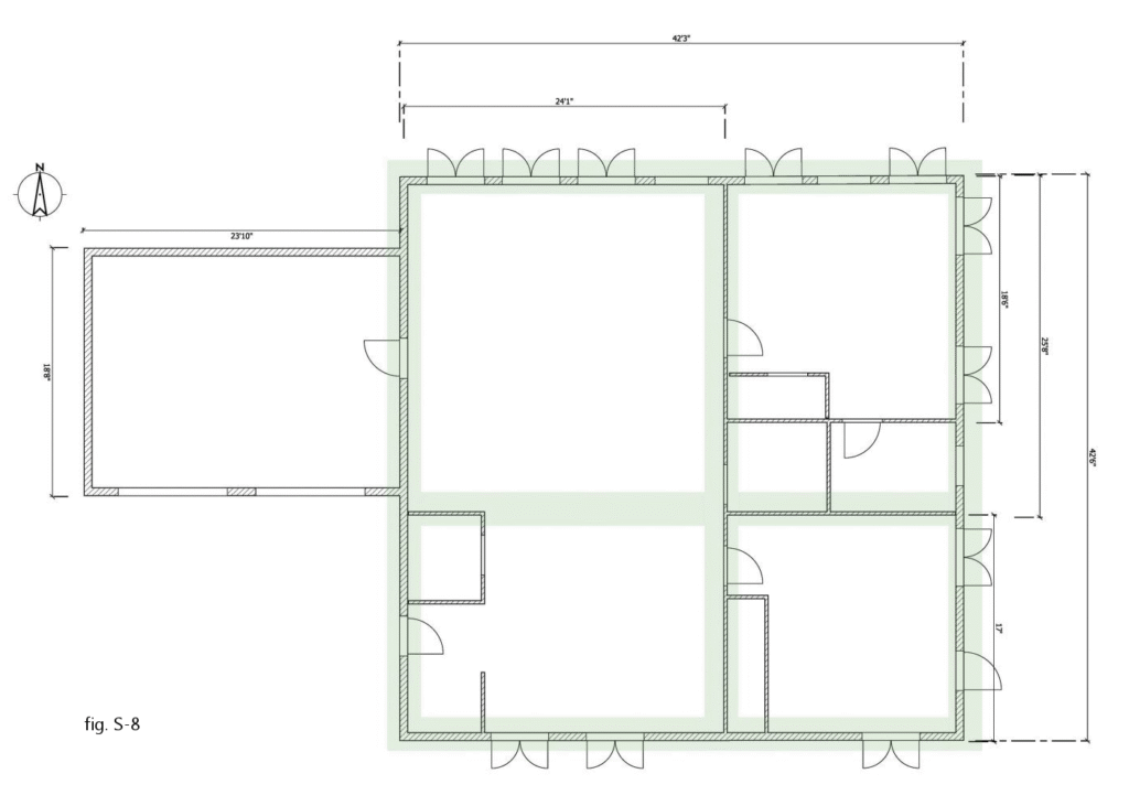
Once more, things appear relatively simple: there are two walls on the east side of the building that can be designated as braced wall bands, such as the one circled in fig S-6. However, there is a problem.
To understand the matter, it’s important to look ahead into what will actually be required of the physical construction in these braced wall bands. Essentially, sections of these walls must be built with continuous studs – in other words, no windows or doors – from foundation to the underside of the roof system. In general, for one- and two-storey construction, at least 25 per cent of the length of a braced wall band must be these “beefier” elements, called braced wall panels. These braced wall panels must be at least 75 cm long (2’6″) in middle sections, but can be 60 cm (2′) at corners. These braced wall panels must be located no more than 2.4 metres (7’10”) from the end of the braced wall band in which it is located, and cannot be located further than 6.4 metres apart (21′) to braced wall panels in the same braced wall band.
It’s the second requirement that presents a problem: in this typical “open concept” design, the interior walls are 23’7″ – or 7.18 metres – apart.
The obvious way to alter the design would be to create a wall on one side of the open area. In the example here, the creation of a laundry room will give a wall section that aligns with the interior east-west braced wall band. It’s one of many solutions available to a designer/contractor. (Note that our inspectors are unable to provide such design advice in real-world situations.)
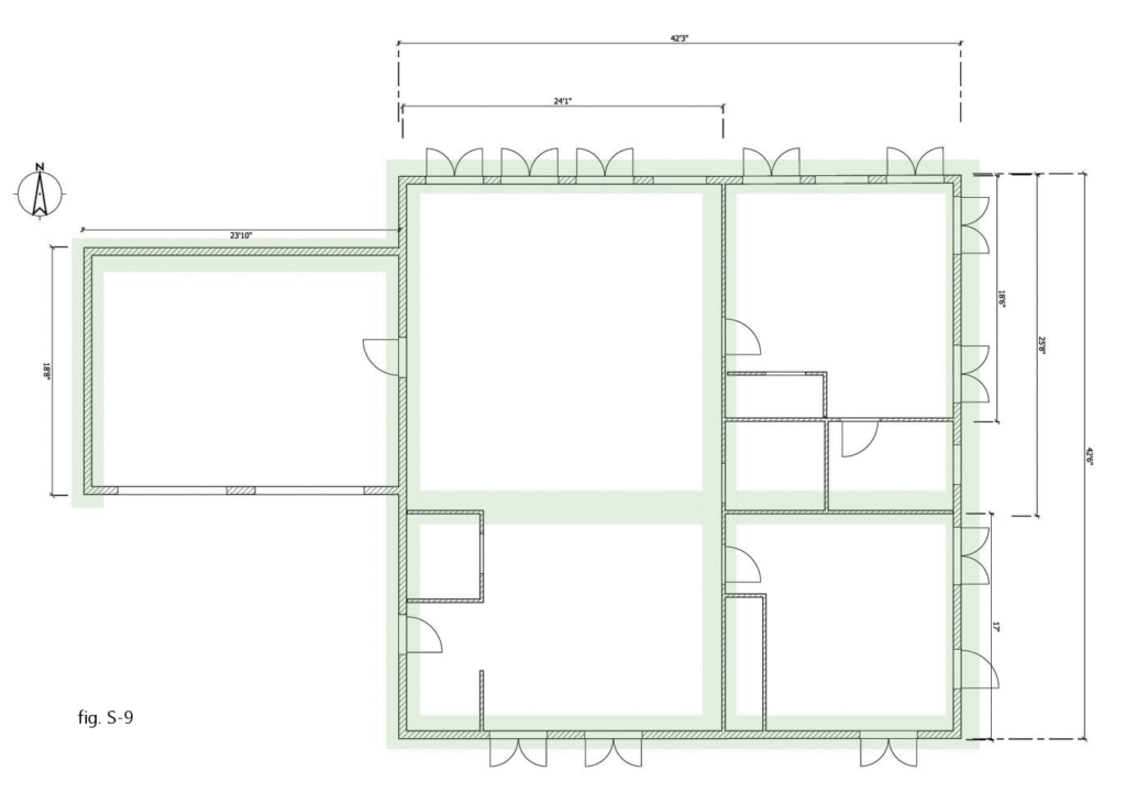
As mentioned above (fig S-8), the general guideline is that 25 per cent of a braced wall band must be comprised of braced wall panels. At first glance, that might make one think that there’s a problem with the detached garage: after all, the south side of the garage features two garage doors, and the gap between them is just two feet – not wide enough for the required 2’6″/75cm length of a panel.
However, the front of one-storey garages are exempt from bracing requirements. The other walls, however, must be designated as braced wall bands, as shown above (fig S-9).
Now comes another challenge in this fictional building plan. As noted, the building code requires that 25 per cent of any braced wall band be comprised of braced wall panels. But remember the minimum length requirement?
In this plan, there are five 4’4″ windows and two 4′ patio doors on the north building face. At first glance, that’s not a problem, since the windows add up to 21′ 8″ of openings and the doors bring that up to 29′ 8″ – that’s only 70 per cent of the 42′ 3″- long wall – leaving 30 per cent solid. But the plan fails to meet code, because too few of the areas without windows/doors are long enough. In fact, there are several problems:
- Only two sections are of the required length
- The distance between the 0.8m section in the middle is too far from the braced wall band at the right
- The two “legal” sections only represent 11% of the wall length.
When faced with a situation like this in the “real world,” our inspectors are not allowed (by law) to provide design advice. We can only explain what the problem is, and the requirements that must be met. However, in this example, we’re going to show a few ways that the plan can be altered to bring it into compliance – it doesn’t by any means suggest these are the only ways to solve the challenge just outlined.
One way, as shown above involves removing a window, reducing the size of one of the doors, and moving one of the windows to allow a braced wall panel in the north-east (right-hand) corner. Now the plan shows three areas that can be designated braced wall bands, each within the 6.4m/21′ limit. Further, these areas now vastly exceed the 25 per cent threshold.
Another option, as outlined below (fig S-12), involves reducing the size of the windows and placing them in the building assembly so that the spacing between allows for the placement of 75cm-wide braced wall panels. Again, the window on the right-hand (north-east) corner has been moved to allow for a braced wall band at the corner.
Working with this altered floor plan, here is how this design can might be submitted to our office, showing where the braced wall panels will be located:
Exceptions: The Code allows for some elements to be exempt from bracing requirements, including porches and sunrooms. The guideline is that the edge of the porch cannot be more than 3.5 metres (that’s 11′ 6″) from the braced wall band forming the main part of the house. Further, the distance from that main wall is limited to being no more than half of the length of the porch. In the diagram below, a sunroom has been added – it’s 18’7″ wide, and 8’10” deep. Since the 8’10 is less than 11′ 6″ and less than half of 18′ 7″, no bracing is required at all. Hence, this plan shows almost 100 per cent windows – and it’s perfectly legal.
Detached one-storey accessory buildings and garages also do not require bracing of any kind.
For more on how the braced wall panels must be constructed, see here.
For a four-page pdf breakdown of some of the above concepts, download our earthquake-pamphlet.
For a more detailed guide (from BC) showing three-storey construction, basement braced wall bands, and heavy-roof construction, click here.
Community & Planning Services
33 Wall Street
St. Stephen NB
E3L 2L5
(506) 466-7369
Mon–Fri, 8am-4:30pm
Hemlock Knoll Solid Waste Facility
5749 Route 3
Lawrence Station NB
E3A 2B9
(506) 466-7830
Mon–Fri, 8am-4:00pm